Προς το περιεχόμενο

Προτεινόμενες αναρτήσεις

Δημοσ.
54 λεπτά πριν, liakjim είπε

το asyg24kmta είναι σε πιο στενό μπαλκόνι και είναι λιγότερο προστατευμένο από τον αέρα, ενώ το yukai είναι χωμένο πιο μέσα

. .από τον τοίχο, πόσο απέχουν? είχα την εντύπωση πως πρέπει να είναι πάνω από 20-30cm .. 

  • Απαντ. 13k
  • Δημ.
  • Τελ. απάντηση

Συχνή συμμετοχή στο θέμα

Δημοσ.
45 λεπτά πριν, sap00 είπε

. .από τον τοίχο, πόσο απέχουν? είχα την εντύπωση πως πρέπει να είναι πάνω από 20-30cm .. 

10εκ θέλει το asyg24kmta ( το yukai δεν το έχω πρόχειρο). Και τα δύο είναι κάπου 25εκ από τον τοίχο.

Δημοσ.

 

καλησπέρα στην παρέα,

εχω ένα σχετικά παλιο 9αρι Fidji σε ένα δωμάτιο και δεν μπορώ να επιλέξω την θέρμανση (heat). 

Τα Feel/ Cool/ Dry / Fan επιλέγονται πατώντας το mode και δουλεύουν κανονικά. Το Heat το προσπερνάει…

Υπαρχει κάποια λογική εξήγηση;
 

69a170f9-19a6-47e8-9a09-37fbc8403b33.jpeg.84891845ae3c7d22fcd692567d1b0615.jpeg

 

 

Δημοσ.
1 λεπτό πριν, mavrik είπε

 

καλησπέρα στην παρέα,

εχω ένα σχετικά παλιο 9αρι Fidji σε ένα δωμάτιο και δεν μπορώ να επιλέξω την θέρμανση (heat). 

Τα Feel/ Cool/ Dry / Fan επιλέγονται πατώντας το mode και δουλεύουν κανονικά. Το Heat το προσπερνάει…

Υπαρχει κάποια λογική εξήγηση;
 

69a170f9-19a6-47e8-9a09-37fbc8403b33.jpeg.84891845ae3c7d22fcd692567d1b0615.jpeg

 

 

Για αρχή, δοκίμασε reset (αν έχει) σε τηλεκοντρόλ και μονάδα και επίσης βγάλε μπαταρίες από τηλεκοντρόλ και μονάδα από το ρεύμα για κάποιες ώρες.

  • Like 1
Δημοσ.
10 λεπτά πριν, Basketikos_ είπε

Για αρχή, δοκίμασε reset (αν έχει) σε τηλεκοντρόλ και μονάδα και επίσης βγάλε μπαταρίες από τηλεκοντρόλ και μονάδα από το ρεύμα για κάποιες ώρες.

Σε ευχαριστώ πολύ! Ήταν οι μπαταρίες τελικά..  

  • Like 1
Δημοσ. (επεξεργασμένο)

καλησπέρα 

 

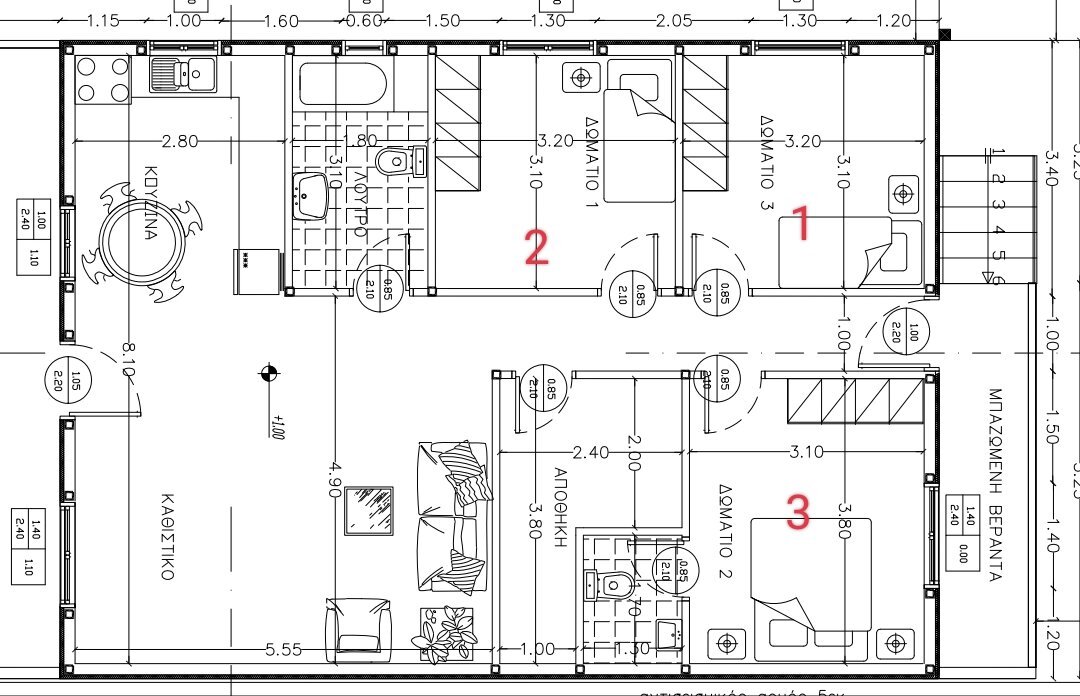
ξεκίνησα τα τεστ αν και δεν είναι σωστό δείγμα για την λειτουργία τους 

με ανοιχτή την πόρτα στα δωμάτια 1-2 και με ζήτηση 22 αυτόματο δουλεύουν 2 yukai 9αρια 

το 3 δεν έχει ρεύμα ακόμη 

στο σαλόνι είναι τοποθετημένο ένα haori 16αρι για να καλύψει σαλόνι κουζίνα κ χωλ

 

εντυπώσεις από τα μικρά είναι πως είναι πραγματικά τάφος, δεν ακούς τίποτα.Στο ξεκίνημα η εξωτερική έδινε πόνο αλλά όταν ισσορόπισε ο χώρος δεν την άκουγες 

Το μεγάλο κάνει παραπάνω φασαρία αλλά ακόμη δεν έχει ρίξει δύναμη, αφού δεν έχει πιάσει θερμοκρασία ο χώρος.Αυριο θα μπει και σε αυτό μετρητής όπως και στο νούμερο 3

 

Τα ξεκίνησα όλα μαζί πρώτη φορά στο νεόδμητο προκάτ που εχω κάνει με τις πόρτες ανοιχτές όλη μέρα λόγω εργασιών 

 

 

 

IMG_20240109_234607.jpg

Screenshot_2024-01-09-23-40-45-15_a3b3f7ff182fbca1933b088238f0f0da.jpg

Screenshot_2024-01-09-23-56-10-47_832c83cae293ea5b0a09ce2a14eefd41.jpg

Επεξ/σία από marioboni
  • Like 3
Δημοσ.
Στις 26/11/2023 στις 9:28 ΠΜ, Sebu είπε

Μεχρι που ελυσα τα κλιματιστικα και βρηκα μεσα μουχλα παντου επιθετικη. Παιδια προσοχη. Τα κλιματιστικα ειδικα τα μεσα καθαρισμα τουλαχιστον 2 φορες το χρονο. Παιρνει λιγο χρονο αλλα ειναι ζητημα υγειας. Οχι μονο τα φιλτρα πλυσιμο αλλα και καλο καθαρισμο και στεγνωμα του στοιχειου και των πλαστικων πισω απο τις γρυλλιες απο οπου ερχεται ο αερας και μενει εκει και υγροποιεται και κανει μουχλα.

Σε αυτη την περιπτωση ειναι ευκολο να κανουμε κατι μονοι μας ή θελει τεχνικο να το λυσει ολο και να το καθαρισει παντου ?

Δημοσ.
7 λεπτά πριν, 26ska είπε

Παιδιά στο Toshiba egde 18 που πρέπει να έχω το power selection;Μια,δύο,τρεις σκάλες έχει.

Στο 100%

  • Thanks 1
Δημοσ.

Καλημέρα.

Για επαγγελματικό χώρο (γραφείο, 3,3Χ6,5μ =22μ2) αναζητώ κάποιο κλιματιστικό θέρμανσης/ψύξης.

Η ιδιαιτερότητα είναι πως η μια πλευρά (3,3μ) του χώρου είναι με υαλοπέτασμα και μάλιστα με όχι την καλύτερη μόνωση τζαμιών κλπ.. Η περιοχή εγκατάστασης με αρκετά κρύα το χειμώνα

Κάποια πρόταση σας; 

Δημοσ.
34 λεπτά πριν, Joe22 είπε

Καλημέρα.

Για επαγγελματικό χώρο (γραφείο, 3,3Χ6,5μ =22μ2) αναζητώ κάποιο κλιματιστικό θέρμανσης/ψύξης.

Η ιδιαιτερότητα είναι πως η μια πλευρά (3,3μ) του χώρου είναι με υαλοπέτασμα και μάλιστα με όχι την καλύτερη μόνωση τζαμιών κλπ.. Η περιοχή εγκατάστασης με αρκετά κρύα το χειμώνα

Κάποια πρόταση σας; 

https://www.elith.gr/calc/index.php

  • Thanks 1
Δημοσ.
7 λεπτά πριν, dimostr είπε

Ναι, έχω δει το συγκεκριμένο link, αλλά από ό,τι καταλαβαίνω αφορά συνολικά δεδομένα κατοικίας ή διαμερίσματος και όχι μεμονωμένα όπως ενός δωματίου/χώρου που αναζητώ εγώ

Δημοσ.
57 λεπτά πριν, Joe22 είπε

Καλημέρα.

Για επαγγελματικό χώρο (γραφείο, 3,3Χ6,5μ =22μ2) αναζητώ κάποιο κλιματιστικό θέρμανσης/ψύξης.

Η ιδιαιτερότητα είναι πως η μια πλευρά (3,3μ) του χώρου είναι με υαλοπέτασμα και μάλιστα με όχι την καλύτερη μόνωση τζαμιών κλπ.. Η περιοχή εγκατάστασης με αρκετά κρύα το χειμώνα

Κάποια πρόταση σας; 

σε αντιστοιχο γραφειο σε εμπορικο κεντρο, με μονοτουβλο στις δυο μεριες, βιτρινα μπροστα, τζαμαρια πισω που εμπαζε απο παντου, ειχα βαλει 18αρι mitsubishi on/off που δουλεψε πολυ καλα 15 χρονια και μετα fujitsu 24αρι inverter που δεν εφτανε, αλλα δεν ειχε τοποθετηθει ποτε με αντλια κενου.
Υποψιν οτι στο γραφειο, θα ανοιγει και η πορτα φανταζομαι. Δεν θα εισαι κλειδωμενος. 
Πατωμα μαρμαρο? πλακακια? τι εχει? Εχε υποψιν σου οτι το πατωμα δεν θα ζεσταθει ποτε, και ειναι μονιμα ενα μεσο που σε κρυωνει καθως ακουμπανε τα ποδια σου. Οπωσδηποτε χαλακι κατω απο το γραφειο και παχυ οσο γινεται.

  • Like 1
  • Thanks 1
Δημοσ. (επεξεργασμένο)
23 λεπτά πριν, Joe22 είπε

Ναι, έχω δει το συγκεκριμένο link, αλλά από ό,τι καταλαβαίνω αφορά συνολικά δεδομένα κατοικίας ή διαμερίσματος και όχι μεμονωμένα όπως ενός δωματίου/χώρου που αναζητώ εγώ

Αφορά το χώρο που θες να καλύψεις , τώρα εαν αυτό είναι σπίτι είναι δωμάτιο είναι διάδρομος είναι οτιδήποτε αυτό είναι αδιάφορο και δεν επηρεάζει το αποτέλεσμα που θα βγει και το αποτέλεσμα είναι πόση ενέργεια χρειάζεται ο συγκεκριμένος χώρος που θες να καλύψεις  για θέρμανση/ψυξη 

Επεξ/σία από dimostr
  • Thanks 1
Επισκέπτης
Αυτό το θέμα είναι πλέον κλειστό για περαιτέρω απαντήσεις.
  • Δημιουργία νέου...