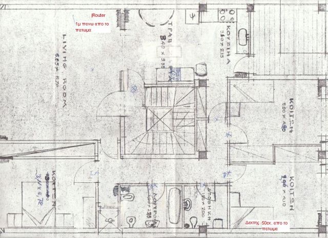
tolisspi Δημοσ. 10 Φεβρουαρίου 2008 Δημοσ. 10 Φεβρουαρίου 2008 Παραθετω ενα σχεδιο του σπιτιου για οποιον τουλαχιστον ξερει να διαβαζει σχεδια. Εβαλα πανω στο ρουτερ μια κεραια τηλεορασης διπολικη (απλα την εχω ακουμπησει) και πιανω στο δωματιο με 70%. Θα το αφησω για καποιο διαστημα και θα δω αν θα λειτουργησει το "κολπο" στον χρονο. Παντως ευχαριστω για την βοηθεια σας.
DJ-RaZieL Δημοσ. 10 Φεβρουαρίου 2008 Δημοσ. 10 Φεβρουαρίου 2008 Φίλε μου η επιστήμη δεν βρίσκει λύσεις με "κόλπα". Αυτό που έκανες δεν είναι κάτι ιδιαίτερα έξυπνο και δε θα σου δώσει τι λύση που ζητάς. Μπορεί να σε βοηθήσουν οι ανακλάσεις αλλά πρακτικά τώρα το ηλεκτρομαγνητικό κύμα σου που είναι γύρω στα 5 εκατοστά από το router σου μπορεί να αποροφάται και απο την κεραία και τη βάση της...
poulinos Δημοσ. 12 Φεβρουαρίου 2008 Δημοσ. 12 Φεβρουαρίου 2008 αμα παμε στις πατεντες 8α βρεις και site πως να φτιαξεις κερεες εσυ που δυναμωνουν το σημα με απλα υλικα κτλ.
nske Δημοσ. 12 Φεβρουαρίου 2008 Δημοσ. 12 Φεβρουαρίου 2008 http://ngia.rootforge.org Tutorials και Ιδιοκατασκευές http://info.awmn.net Βοηθήματα και R&D
helius Δημοσ. 12 Φεβρουαρίου 2008 Δημοσ. 12 Φεβρουαρίου 2008 Λυσεις για καλυτερη ληψη σε wifi 1) Ενα reapeter που ειναι και η ακριβοτερη 2)Μπορεις να αλλαξεις κεραιες και να βαλεις κεραιες κατευθυντικου τυπου με μεγαλυτερο δεικτη Db 3)Δοκιμασε να τοποθετησεις το pc καπου πιο ψηλα το ιδιο καi to router. Ψηλοτερα ισον λιγοτερα εμποδια και παρεμβολες. Σε μενα αυτο εδωσε 10 μοναδες στο σημα
poulinos Δημοσ. 12 Φεβρουαρίου 2008 Δημοσ. 12 Φεβρουαρίου 2008 βεβεα αμα πας σε 2 καλες κερεες 8α φτασεις τα μισα λεφτα του repeater.
tolisspi Δημοσ. 12 Φεβρουαρίου 2008 Δημοσ. 12 Φεβρουαρίου 2008 Εχω εν μερει μπλεξει. Το ρουτερ της connex δεν εχει αποσπωμενη κεραια. Η ασυρματη pci που εχω (http://www.e-shop.gr/show_per.phtml?id=PER.616099) το καλωδιο της κεραιας ειναι 50εκ. Μια καλη λυση ειναι να βαλω προεκταση στην κεραια της pci αλλα θελω 3χ4 μετρα και απ οτι βλεπω στο νετ κοστιζει το 5μετρο 10 ευρω περιπου. Ασε που θα γεμισω καλωδια. ** Η κεραια που εχω τοποθετησει στο ρουτερ δεν ειναι με ενισχυτη αλλα ενα απλο διπολο.
poulinos Δημοσ. 13 Φεβρουαρίου 2008 Δημοσ. 13 Φεβρουαρίου 2008 εγω 8α βαζα repeater.τα καλωδια 8α βγουν ακριβα .τωρα αμα προεκτεινεις μονο την μια δεν ξερω τι 8α γινει.και αν παλι παιξει κανονικα ακομα και με προεκταση.βεβεα το repeater 8α ειναι g οχι n
StavrosD Δημοσ. 13 Φεβρουαρίου 2008 Δημοσ. 13 Φεβρουαρίου 2008 http://www.skroutz.gr/search?keyphrase=wireless+extender
tolisspi Δημοσ. 14 Φεβρουαρίου 2008 Δημοσ. 14 Φεβρουαρίου 2008 βεβεα το repeater 8α ειναι g οχι n τι εννοεις? g οχι n?
poulinos Δημοσ. 14 Φεβρουαρίου 2008 Δημοσ. 14 Φεβρουαρίου 2008 τι εννοεις? g οχι n? ασυρματο g oxi n .πρωτοκολλο g 54 mbps οχι draft n ή n
tolisspi Δημοσ. 16 Φεβρουαρίου 2008 Δημοσ. 16 Φεβρουαρίου 2008 Δεν ξερω αλλα με αυτην την κεραια πιανω μια χαρα απο 50-70% και δεν το εχω ψαξει πολυ το να της αλλαξω θεση. Θα δω πως θα παει και βλεπω τι θα κανω. Ευχαριστω πολυ για την βοηθεια σας.
poulinos Δημοσ. 16 Φεβρουαρίου 2008 Δημοσ. 16 Φεβρουαρίου 2008 με την μικρη κερεα η την μεγαλη της τηλεορασης.χαχα.
Προτεινόμενες αναρτήσεις
Αρχειοθετημένο
Αυτό το θέμα έχει αρχειοθετηθεί και είναι κλειστό για περαιτέρω απαντήσεις.