ilove3dmax Δημοσ. 24 Σεπτεμβρίου 2014 Δημοσ. 24 Σεπτεμβρίου 2014 Καλησπέρα σε ολους το σπιτι οπου μενω είναι καπου στα 80 με 90 τετραγωνικα το θεμα είναι ότι για να καλυψω ασυρματα ΟΛΟ Το σπιτι πρεπει να Βαλω 2 Access Point με Reapeater Mode προκειμενου να παιζει αυτό σωστα Θελω ένα Accesspoint που να υποστιριζει τα ακολουθα Modes Καταρχας να είναι αρκετα Δυνατο προκειμενου να μπορει να φτασει σε ολους τους χορους του σπιτιου Επισης να υποστιριζει και A/B/G/N η τουλάχιστον B/G/N Επισης εχω δει καποια Accesspoint που υποστιζουν με ένα AccessPoint μια λειτουργια που λεγετε MultiAccesspoint και μπορεις να βαλεις εως 4 SSID με διαφορετικη Κρυπτογραφιση px WPA2-PSK AP1 WEP AP2 κλπ Επισης επειδή μου την δινει να δινω κωδικούς και τετοια στο ασυρματο μου και να μπωρει ο οποιοδήποτε είναι στο σπιτι μου να σουλατσαρει αερα πατερα στο δυκτιο μου θα ηθελα να υποστιριζει Guest Mode Access ( Κατι Cisco indoor το κανουν αυτό) Και επισης να υποστιριζει αν γινετε Vlans Nα ενημερωσο ότι σπιτι μου λογω Lab δουλευω με CISCO 2851 + Call Manager Express 8.6 + Τηλεφωνα Cisco και αυτή τη στιγμη δουλευουν 2 access point και κανουν χαζομάρες κολαει το ένα θελουν reset και τα δυο μετα κλπ σας βαζω μια φωτογραφια του χωρου του σπιτιου μου για να καταλάβετε πως είναι Αν το Accesspoint είναι μπλαφονιερα οροφης + POE δεν εχω κανενα απολυτος πρόβλημα εχω και Poe Switch
Rabican Δημοσ. 24 Σεπτεμβρίου 2014 Δημοσ. 24 Σεπτεμβρίου 2014 καλημερα! για την καλυψη σε ολο το χωρο ισως να μπορει να σε βοηθησει καποιος αλλος περισσοτερο, ομως για το guest mode, μπορεις πολυ απλα ενα ssid να το κανεις associate με ενα ξεχωριστο vlan (αρα και subnet) και με χρηση ACL να κοψεις οποιαδηποτε προσβαση προς το εσωτερικο δικτυο απο αυτο. στον 2851 απλα θα χρειαστεις ενα ξεχωριστο subinterface και στο lan switch ενα ξεχωριστό vlan.. thats it!
poulinos Δημοσ. 24 Σεπτεμβρίου 2014 Δημοσ. 24 Σεπτεμβρίου 2014 το θεμα μεταφερεται στην σωστη ενοτητα. επισης προσωπικη αποψη θα εριχνα Utp μεσα σε καναλι ακριβως για να μην παιζω repeater mode ή θα εβαζα Powerline και πανω στο Powerline το access point για να ειμαι οσο γινεται καλωδιακα.δυνατα ειναι και τα air live (καποια παιζουν και παραπανω απο 100mw αλλα δεν ξερω αν εχουν ολα τα υπολοιπα που θες).
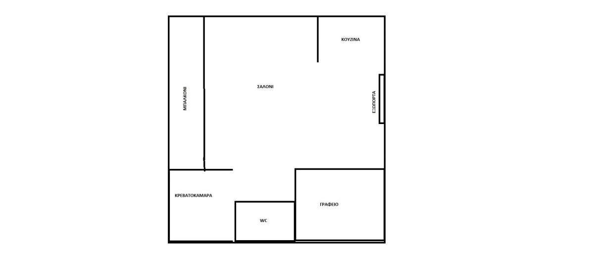
jkoukos Δημοσ. 24 Σεπτεμβρίου 2014 Δημοσ. 24 Σεπτεμβρίου 2014 Από τις απαιτήσεις που θέτεις, βλέπω ότι σε καλύπτουν τα Unifi της Ubiquiti. Είναι εκπληκτικά μηχανάκια, αν και λίγο τσιμπημένα ειδικά τα PRO και AC. Αν οπωσδήποτε χρειάζεσαι τους 5GHz ή/και 802.3af/at πας σε UAP-PRO ή UAP-AC. Διαφορετικά σου κάνει οποιοδήποτε UAP που υποστηρίζουν απλό PoE και 11b/g/n. Μπορεί να τοποθετηθούν είτε στην οροφή είτε στον τοίχο είτε πάνω σε κάποιο ράφι. Με το σχέδιο που δίνεις βλέπω ότι έχει ανοικτό χώρο και εύκολα καλύπτεσαι από ένα μόνο ΑΡ. Ιδανική θέση θεωρώ ότι είναι στη μέση του σπιτιού (πράσινο), αλλά και πάνω από την πόρτα του WC (κόκκινο) που είναι κοντά στο ιδανικό ,πιστεύω ότι θα δουλέψει άψογα.
ilove3dmax Δημοσ. 24 Σεπτεμβρίου 2014 Μέλος Δημοσ. 24 Σεπτεμβρίου 2014 Αν και πολύ σοβαρη λυση αυτή που μου προτινεις και δεν είναι θεμα το οικονομικο εχεις να μου προτινεις κατι άλλο εκτος MIMO ? Από τις απαιτήσεις που θέτεις, βλέπω ότι σε καλύπτουν τα Unifi της Ubiquiti. Είναι εκπληκτικά μηχανάκια, αν και λίγο τσιμπημένα ειδικά τα PRO και AC. Αν οπωσδήποτε χρειάζεσαι τους 5GHz ή/και 802.3af/at πας σε UAP-PRO ή UAP-AC. Διαφορετικά σου κάνει οποιοδήποτε UAP που υποστηρίζουν απλό PoE και 11b/g/n. Μπορεί να τοποθετηθούν είτε στην οροφή είτε στον τοίχο είτε πάνω σε κάποιο ράφι. Με το σχέδιο που δίνεις βλέπω ότι έχει ανοικτό χώρο και εύκολα καλύπτεσαι από ένα μόνο ΑΡ. Ιδανική θέση θεωρώ ότι είναι στη μέση του σπιτιού (πράσινο), αλλά και πάνω από την πόρτα του WC (κόκκινο) που είναι κοντά στο ιδανικό ,πιστεύω ότι θα δουλέψει άψογα.
jkoukos Δημοσ. 24 Σεπτεμβρίου 2014 Δημοσ. 24 Σεπτεμβρίου 2014 Υπάρχει κάτι που δεν είναι MiΜο; Τι πρόβλημα έχεις μ' αυτό; Νομίζω (δεν είμαι σίγουρος) ότι μπορείς να ορίσεις περιορισμό χρήσης έως MCS7, άρα να δουλεύεις σε 1x1. Και η σειρά SMB της Cisco σου κάνουν ειδικά το WAP561.
ilove3dmax Δημοσ. 25 Σεπτεμβρίου 2014 Μέλος Δημοσ. 25 Σεπτεμβρίου 2014 Μεταξυ του CiscoWAP321 και του CiscoWAP551/561 Ποιο από τα δυο θα πρότεινες? με βαση τα παραπανω χαρακτηριστικα που θελω
Προτεινόμενες αναρτήσεις
Δημιουργήστε ένα λογαριασμό ή συνδεθείτε για να σχολιάσετε
Πρέπει να είστε μέλος για να αφήσετε σχόλιο
Δημιουργία λογαριασμού
Εγγραφείτε με νέο λογαριασμό στην κοινότητα μας. Είναι πανεύκολο!
Δημιουργία νέου λογαριασμούΣύνδεση
Έχετε ήδη λογαριασμό; Συνδεθείτε εδώ.
Συνδεθείτε τώρα