Προς το περιεχόμενο

Προτεινόμενες αναρτήσεις

Δημοσ. (επεξεργασμένο)
15 λεπτά πριν, mousmoulis είπε

Μπορεί κάποιος να επιβεβαιώσει αν μεταξύ αυτών των 2 μοντέλων:

https://www.alphaclimagr.gr/product/1410530/inventor-aria-ar3vi32-12wf-ar3vo32-12-klimatistiko.html

https://www.alphaclimagr.gr/product/1343775/inventor-aria-ar1mvi32-12wifir-ar1mvo32-12-inverter.html

η μόνη διαφορά είναι ότι το πρώτο είναι WiFi Standard ενώ το δεύτερο και φθηνότερο είναι WiFi Ready?

Επίσης, έχει μήπως αγοράσει κανείς αυτό το μοντέλο από Mediamarkt?

https://www.mediamarkt.gr/el/product/_inventor-aria-ar3vi32-12wf-ar3vo32-12-με-ιονιστή-1223088.html

Στον τίτλο φαίνεται πως πρόκειται για το μοντέλο WiFi Standard (INVENTOR ARIA AR3VI32-12WF/AR3VO32 - 12), αλλά αν δει κανείς τα γενικά χαρακτηριστικά του κλιματιστικού στο πεδίο "Αριθμός Κατασκευαστή" αναφέρει: 

AR1MVI32 - 12WiFiR / AR1MVO32 - 12

που παραραπέμπει στην έκδοση WiFi Ready.


https://www.inventoraircondition.gr/klimatistika/oikiaka-toixou/aria#tech-specs

Το AR3 είναι το τωρινό μοντέλο  και έχει ενσωματωμένο wi-fi σύμφωνα με το site τους . 

Το AR1 μάλλον είναι το προηγούμενο μοντέλο  μιας και δεν υπάρχει στην γκάμα τους με τα τωρινά αλλά βρήκα εδώ μερικά specs και δεν έχει ενσωματωμένο το wi-fi :
https://www.inventoraircondition.gr/media-library

Σου έχω επισύναψει το αρχείο με τα specs του AR1 από το παραπάνω link .

Inventor-ARIA-tech-specs-aria.xlsx

57 λεπτά πριν, Derekian είπε

Καλησπέρα στο forum,

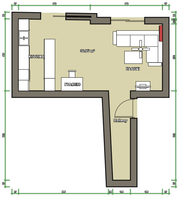
Ψάχνομαι κι εγώ για αγορά κλιματιστικού για σαλονοκουζίνα. Το θέλουμε μόνο για ψύξη και θα λειτουργεί κυρίως απόγευμα-βράδυ και Σ/Κ λογικά περισσότερο.

Περίπου 37m², μέτρια προς κακή μόνωση, το βλέπει ο ήλιος αρκετά και έχει ένα hall το οποίο δεν έχει πόρτα.

Επισυνάπτω κι ένα σχηματικό του χώρου και οι βασικές μου απορίες είναι:

  • Φτάνει ένα 18άρι για τον χώρο?
  • Έχω σημειώσει με κόκκινο τη θέση που θα το έβαζα, υπάρχει καμιά καλύτερη πρόταση?

Για μοντέλα κτλ νομίζω πως υπάρχει ήδη τεράστιος όγκος πληροφορίας σε προηγούμενες αναρτήσεις, ευχαριστώ πολύ τα παιδιά που προσφέρουν απλόχερα τη βοήθειά τους!

New project.jpeg

Μάλλον δεν φτάνει το 18άρι . Εχεις σαλονοκουζίνα άρα όταν θα δουλεύει η κουζίνα θα έχεις μεγαλύτερες ανάγκες ψύξης . 
Επίσης είναι και το χωλ χωρίς πόρτα όπου θα πηγαίνει και προς τα εκεί ψύξη . Τα 37 τ.μ αν διαβάζω σωστά τις διαστάσεις του χώρου, είναι μόνο η σαλονοκουζίνα . Οπότε ο χώρος σου είναι μεγαλύτερος . 24άρι θα κοιτούσα  αλλά πάρε και μια γνώμη απο έναν ψυκτικό . Δείξε του την κάτοψη αυτή . 

Επεξ/σία από Dare-Devil
  • Thanks 1
  • Απαντ. 31,7k
  • Δημ.
  • Τελ. απάντηση

Συχνή συμμετοχή στο θέμα

  • liakjim

    5364

  • Dare-Devil

    2162

  • banned_acc

    1683

  • Rnd1978

    1481

Συχνή συμμετοχή στο θέμα

Δημοσιευμένες Εικόνες

Δημοσ.
7 λεπτά πριν, Dare-Devil είπε


https://www.inventoraircondition.gr/klimatistika/oikiaka-toixou/aria#tech-specs

Το AR3 είναι το τωρινό μοντέλο  και έχει ενσωματωμένο wi-fi σύμφωνα με το site τους . 

Το AR1 μάλλον είναι το προηγούμενο μοντέλο  μιας και δεν υπάρχει στην γκάμα τους με τα τωρινά αλλά βρήκα εδώ μερικά specs και δεν έχει ενσωματωμένο το wi-fi :
https://www.inventoraircondition.gr/media-library

Σου έχω επισύναψει το αρχείο με τα specs του AR1 από το παραπάνω link .

Inventor-ARIA-tech-specs-aria.xlsx 13 kB · 3 downloads

Σε ευχαριστώ πολύ για την απάντηση, κι εγώ το ψαχνα στο site τους και δεν το βρήκα. Το .xls είναι επίσημο της Inventor, άρα και τα specs  είναι αξιόπιστα, σωστά? Βλέπω ότι το SEER στο παλιό μοντέλο είναι καλύτερο (7.5) σε σχέση με το νεότερο (7.0) στα 12000btu.

Δημοσ. (επεξεργασμένο)
15 λεπτά πριν, Dare-Devil είπε

Mάλλον δεν φτάνει το 18άρι . Εχεις σαλονοκουζίνα άρα όταν θα δουλεύει η κουζίνα θα έχεις μεγαλύτερες ανάγκες ψύξης . 

Επίσης είναι και το χωλ χωρίς πόρτα όπου θα πηγαίνει και προς τα εκεί ψύξη . Τα 37 τ.μ αν διαβάζω σωστά τις διαστάσεις του χώρου, είναι μόνο η σαλονοκουζίνα . Οπότε ο χώρος σου είναι μεγαλύτερος . 24άρι θα κοιτούσα  αλλά πάρε και μια γνώμη απο έναν ψυκτικό . Δείξε του την κάτοψη αυτή . 

Ευχαριστώ για την απάντηση.

Τα 37m² είναι το σύνολο μαζί με το χωλ.

Κοιτώντας τα χαρακτηριστικά του Inventor Aria (το αναφέρω ενδεικτικά) το 24αρι με το 18αρι έχουν σχεδόν 1kW διαφορά στη μέση κατανάλωση και μία τίμια διαφορά τιμής.

Καταλαβαίνω πως το 24αρι θα ψύχει τον χώρο πιο άνετα αλλά δεδομένου της χρήσης (κάτω από 8 ώρες ανα μέσο όρο) έχει ιδιαίτερο νόημα το έξτρα κόστος?

Επεξ/σία από Derekian
μισό post
Δημοσ.
3 λεπτά πριν, Derekian είπε

Ευχαριστώ για την απάντηση.

Τα 37m² είναι το σύνολο μαζί με το χωλ.

Κοιτώντας τα χαρακτηριστικά του Inventor Aria (το αναφέρω ενδεικτικά) το 24αρι με το 18αρι έχουν σχεδόν 1kW διαφορά στη μέση κατανάλωση και μία τίμια διαφορά τιμής.

Καταλαβαίνω πως το 24αρι θα ψύχει τον χώρο πιο άνετα αλλά δεδομένου της χρήσης (κάτω από 8 ώρες ανα μέσο όρο) έχει ιδιαίτερο νόημα το έξτρα κόστος?

Το πρώτο πράγμα που κοιτάζουμε είναι να μας καλύπτει άνετα το κλιματιστικό τον χώρο μας . Αν το 18άρι είναι μικρό για το χώρο σου δεν θα ψύχει . Οπότε ποιο το νόημα να παρεις κλιματιστικό αν δεν κάνει αυτό που πραγματικά προορίζεται ; Να ψύχει . Μίλα και με έναν ψυκτικό . 

  • Thanks 1
Δημοσ. (επεξεργασμένο)
11 ώρες πριν, Richard είπε

Καλημέρα σε όλη την κοινότητα!

Ήθελα και εγώ με την σειρά μου την συμβουλή των πιο έμπειρων...

Ψάχνω να αγοράσω άμεσα κλιματιστικό για το δωμάτιο του βρέφους μου. Πρόκειται για χώρο 15μ2 περίπου, με 1 μπαλκονόπορτα και 1 παράθυρο και μέτρια μόνωση, οπότε μιλάμε μάλλον για 9000BTU μηχάνημα.

Αναζητώ ό,τι καλύτερο από πλευράς ποιότητας αέρα για λόγους υγείας, ανεξαρτήτως χρημάτων. Ήθελα να ρωτήσω τα εξής:

1. Πιστεύετε ότι το Daikin Ururu Sarara προσφέρει αρκετά παραπάνω στο θέμα ποιότητας αέρα ώστε να δικαιολογηθεί η αγορά του;

2. Από Daikin ή Mitsubishi τι θεωρείτε ως το πιο κατάλληλο για την περίπτωση;

3. Τι άλλο θα προτείνατε εσείς;

Θερμότατη παράκληση για τεκμηριωμένες προτάσεις με στοιχεία.

Ευχαριστώ πολύ όποιον/α αφιερώσει λίγο χρόνο.

Το Daikin ururu sarara είναι αυτήν την στιγμή το μόνο κλιματιστικό. 

Όλα τα υπόλοιπα, όλα όμως, είναι απλά air conditioners.

Εξηγούμαι:

Τα air conditions . λόγω του τρόπου λειτουργίας τους που το καλοκαίρι σε λειτουργία ψύξης έχουν το μέσα στοιχείο να πέφτει κάτω από το σημείο δρόσου, έχουν ως δευτερεύων αποτέλεσμα την συμπύκνωση των υδρατμών , οι οποίοι σε μορφή νερού , εξέρχονται εκτός σπιτιού (τον χειμώνα γίνεται το αντίστροφο αλλά εκεί αφυγραίνουν των εξωτερικό αέρα). 

Το θέμα είναι ότι δεν υπάρχει έλεγχος στη διαδικασία, οπότε με την αυστηρή έννοια του όρου, το 99,99% των air conditions ΔΕΝ είναι κλιματισμός. 

Κλιματισμός σημαίνει να ελέγχω το κλίμα , άρα θερμοκρασία και υγρασία. 

Μόνο ένα κλιματιστικό split υπάρχει στην αγορά που ελέγχει απόλυτα το κλίμα και την υγρασία και αυτό είναι το Daikin ururu sarara. 

Αν θες να μην έχεις λοιπόν ανεξέλεγκτη αφύγρανση  , θα πρέπει να πας μόνο εκεί . Αλλιώς σε καλύπτει κάποιο Shorai Premium ή Mitsubishi . 

  •  
30 λεπτά πριν, livaspy είπε

Ποιά η γνώμη σας?

https://www.kotsovolos.gr/site/air-condition-heaters/air-condition/7.000-to-15.000-btu/185591-general electric-ges-nx2g50-prime

Όντως η εσωτερική μονάδα είναι 1 μέτρο?

1,03 για την ακρίβεια. 

Όχι κάτι το ιδιαίτερο .

1 ώρα πριν, Derekian είπε

Καλησπέρα στο forum,

Ψάχνομαι κι εγώ για αγορά κλιματιστικού για σαλονοκουζίνα. Το θέλουμε μόνο για ψύξη και θα λειτουργεί κυρίως απόγευμα-βράδυ και Σ/Κ λογικά περισσότερο.

Περίπου 37m², μέτρια προς κακή μόνωση, το βλέπει ο ήλιος αρκετά και έχει ένα hall το οποίο δεν έχει πόρτα.

Επισυνάπτω κι ένα σχηματικό του χώρου και οι βασικές μου απορίες είναι:

  • Φτάνει ένα 18άρι για τον χώρο?
  • Έχω σημειώσει με κόκκινο τη θέση που θα το έβαζα, υπάρχει καμιά καλύτερη πρόταση?

Για μοντέλα κτλ νομίζω πως υπάρχει ήδη τεράστιος όγκος πληροφορίας σε προηγούμενες αναρτήσεις, ευχαριστώ πολύ τα παιδιά που προσφέρουν απλόχερα τη βοήθειά τους!

New project.jpeg

Καλύτερα ένα 22άρι . 

Πρόταση : https://www.bestprice.gr/item/2155644412/mitsubishi-heavy-industries-srksrc-63-zr-w.html?qid=3jVdy5D8KNH_97cce&seq=17

Μάλλον το απολύτως κορυφαίο κλιματιστικό στα λεφτά του με SEER 8.1 = απίστευτη οικονομία και είναι και αθόρυβο και τέρας δύναμης. 

Δεν είμαι ψυκτικός αλλά προσωπικά θα το έβαζα εδώ ή ακριβώς απέναντί του:

269783301_Newproject.jpg.0b1fb471806544664f83ce3b08acca31.jpg

 

Επεξ/σία από liakjim
Δημοσ.

έφερε ο Κωτσόβολος το wifi module για Toshiba. (συμβατό όπως γράφει για DSK9,SHORAI PREMIUM, SHORAI, MIRAI PLUS, BI-FLOW).

spacer.png

https://www.kotsovolos.gr/site/air-condition-heaters/accessories/200157-toshiba-rb-n101s-g-wi-fi-module

10 ώρες πριν, nio25 είπε

 

Κάτι που έχω παρατηρήσει, και θα ήθελα τη γνώμη σας, είναι ότι το κλιματιστικό σταματάει να δουλεύει όταν η θερμοκρασία φτάσει -2 βαθμούς από αυτή που του έχω ορίσει και ξεκινάει όταν φτάσει +1 (για το +1 δεν είμαι και 100% σίγουρος). Έτσι δουλεύουν όλα τα κλιματιστικά;

 

Όχι. Έτσι δουλεύουν τα φασόν inverter β' διαλογής 

Δημοσ.
13 λεπτά πριν, guzel είπε

έφερε ο Κωτσόβολος το wifi module για Toshiba. (συμβατό όπως γράφει για DSK9,SHORAI PREMIUM, SHORAI, MIRAI PLUS, BI-FLOW).

spacer.png

https://www.kotsovolos.gr/site/air-condition-heaters/accessories/200157-toshiba-rb-n101s-g-wi-fi-module

Τεράστια απάτη και εκνευριστικά πανάκριβο. Μα είναι δυνατόν να κοστίζει σχεδόν το 10% της τιμής ολόκληρου του κλιματιστικου!

Πάνω από 20€ δεν θα έδινα για κάτι τόσο mainstream εν έτη 2019.

Δημοσ.
Μόλις τώρα, liakjim είπε

Τεράστια απάτη και εκνευριστικά πανάκριβο. Μα είναι δυνατόν να κοστίζει σχεδόν το 10% της τιμής ολόκληρου του κλιματιστικου!

Πάνω από 20€ δεν θα έδινα για κάτι τόσο mainstream εν έτη 2019.

Ίσως να λειτουργεί απροβληματιστα. Αν κάνει τις γνωστές βλακείες βλ. wifi κλιματιστικών gree και άλλων ναι δεν αξίζει. 

Επίσης στα manual, στις φωτογραφίες δείχνει εσωτερική,εξωτερική θερμοκρασια. Ενδιαφέρον αν ισχύει ..

 

 

Δημοσ.
4 ώρες πριν, nikolakis83 είπε

Είχα υπολογίσει τα τμ λάθος.. Πρόκειται να μπει σε έναν ενιαίο χώρο 30 τμ.. Τα κουφώματα είναι συρόμενα, και γενικά το βλέπει αρκετές ώρες ο ήλιος. Από πάνω υπάρχει άλλο διαμέρισμα.
Πιστεύεις ότι και για 30 τμ ένα 12-άρι δεν θα με καλύψει?
 

Πολύ οριακό. Στις πολύ ζεστές ημέρες όπου τα κλιματιστικά χάνουν ένα 20% σε ισχύ, δεν θα σε καλύπτει.

Θες 16αρι.

Δημοσ.

Παιδιά καλησπέρα, ήθελα να προσθέσω κάτι άσχετο που μπορεί να ενδιαφέρει...από κωτσο κράτησαν τα στοιχεία μας και 2 ημέρες μετά μας κάλεσαν για 100 ευρώ έκπτωση και δωρεάν εγκατάσταση.

Δημοσ.
Στις 23/6/2019 στις 7:16 ΜΜ, CptBill είπε

ναι αλλα θελει 12 εκατοστά συμφωνα με το manual 

image.png.de929af0a7ff2edc639843d1c1d54773.png

Ακομα με τρωει για 12αρι midea ultimate comfort. Τι γινεται εαν απο την αριστερα του πλευρα δεν μπορω να του αφησω 12 εκατοστα αλλα 1 εκατοστο ελευθερο;

Δημοσ.
28 λεπτά πριν, livaspy είπε

Πρόταση για 18αρι inverter R410 μέχρι 800€ για 40τμ?

Γιατί R410 ; Υπάρχει κάποιος λόγος ;

Δημοσ.
54 λεπτά πριν, CptBill είπε

Ακομα με τρωει για 12αρι midea ultimate comfort. Τι γινεται εαν απο την αριστερα του πλευρα δεν μπορω να του αφησω 12 εκατοστα αλλα 1 εκατοστο ελευθερο;

πρακτικα τπτ... περισσοτερο θεμα προσβασιμοτητας ειναι το θεμα παρα προβλημα αποδοσης... ισως κοβει πιο γρηγορα απο το επιθυμητο λογω στενου χωρου που θα τοποθετηθει..

  • Like 1
Επισκέπτης
Αυτό το θέμα είναι πλέον κλειστό για περαιτέρω απαντήσεις.

  • Δημιουργία νέου...